projects

the Cooperative

The project proposes a re-use of the Shaan Harod Cooperative complex, along with its expansion through a new building typology inspired by principles derived from the original structure, designed by architect Shmuel Bickels.

The building offers a foundation for fostering local initiatives and facilitating the exchange of ideas. Its design based on the original concept of modulation, creating flexible spaces that can adapt to the evolving needs of the organization and the community.

The new building is constructed from precast concrete elements that encompass both the structural and design aspects. These prefabricated elements are assembled on-site with dry joints, forming a network of beams and columns. Roof units, derived from the geometry of the existing roofs in the original structure, are then installed according to the desired type of space.

Shean Harod Cooperative, Ein Harod, Israel
Adaptive re-use

Studio 6, 3rd year, 2nd semester
In Collaboration with Omri Nadav
Lecturers: Arch. Gil Even-Tzur Arch. Tomer Deren Peretz

Roof precast

Site model

original Building

Southern facade

LAND OF LORDS

The "Jesus Trail", founded in 2007, traces the stations of Jesus' life as part of the Christian pilgrimage.
The landscape between Nazareth and the Sea of Galilee, through which the Jesus Trail passes, has undergone and continues to experience shifts in ownership and narratives throughout history. At times, it is seen as a series of stations, and at others, as a unified landscape that intertwines these stations.

 As part of spatial research, this project examines the intersection between the pilgrimage route and the contemporary Israeli landscape. This encounter reveals that at the pinnacle of the journey, upon reaching the Sea of Galilee, the trail struggles to maintain continuity within a landscape entangled with various stakeholders and property owners.

 Our intervention aims to enhance the depth of this space. Just as the pilgrimage has, for two thousand years, sustained an imagined, borderless space defined by its stations, we seek to unify a fragmented area saturated with diverse influences. By introducing five new stations, strategically interwoven within the landscape and recognizing spatial opportunities in the field, we aim to condense the space around the banks of the Sea of Galilee, thereby expanding its spatial and social depth.

Studio 5, 3rd year, 1st semester
In Collaboration with Amir Gershoni
Lecturers: Arch. Ifat Finkelman Arch. Roi Dwek

Sea of Galilee, Israel

Map of Lands’ Owners and Access Diagram

Conseptual Vision

Surface analysis

Five New Pilgrimags Stations in Ginosar Valley

Sapir Site

Ceremony hall and observation point along the fence of the Sapir National Site at Tel Kinarot

Gospel boardwalk

Personal baptism path at the olives groves

private land

Floating beach circumvents private land claims

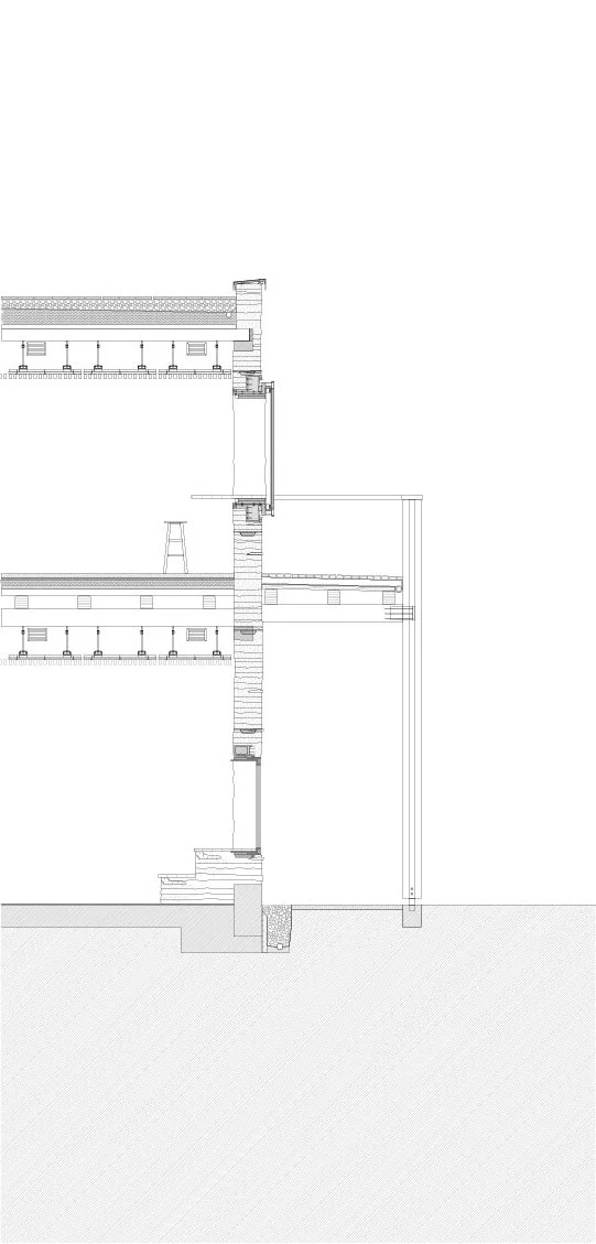
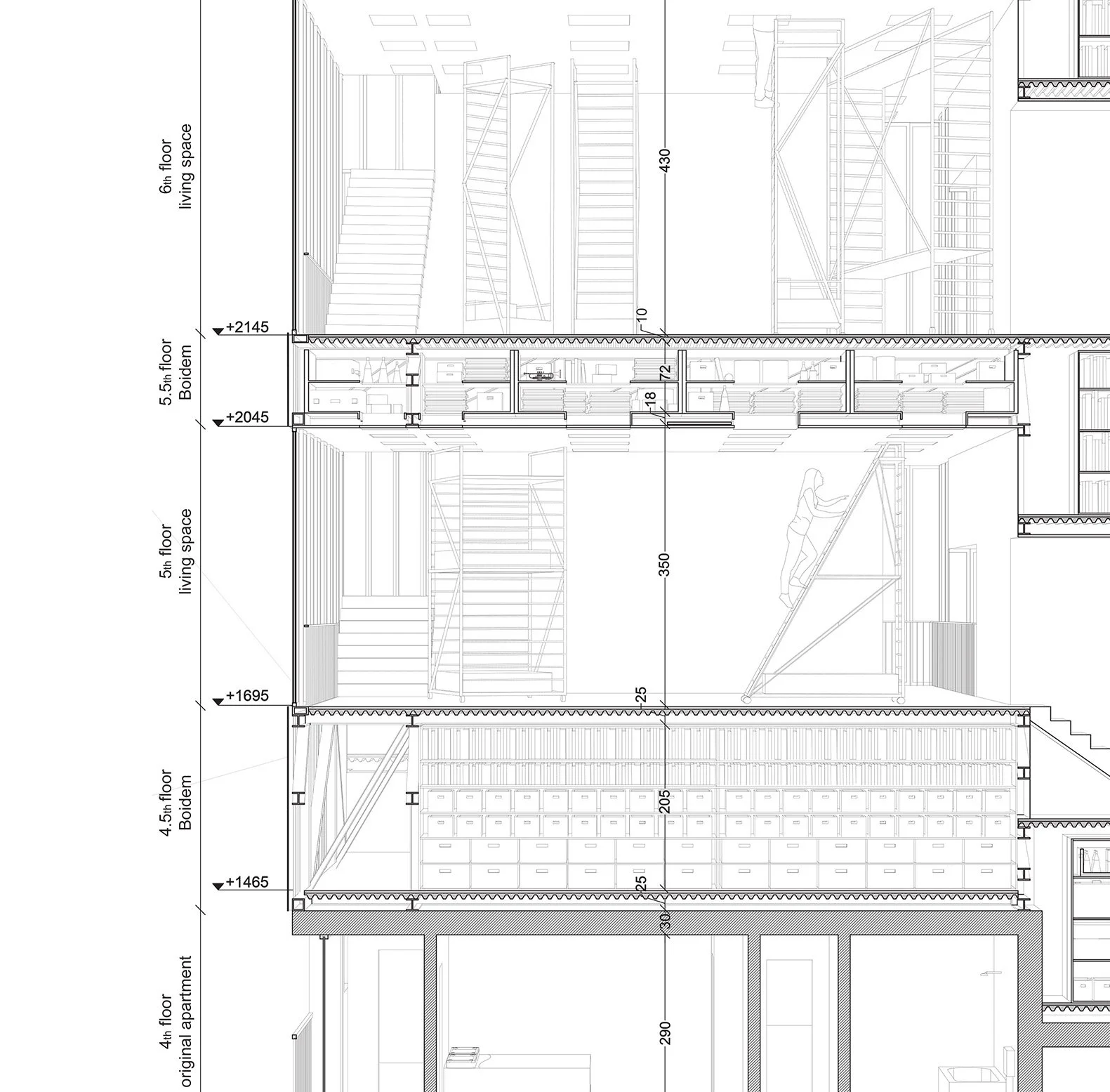
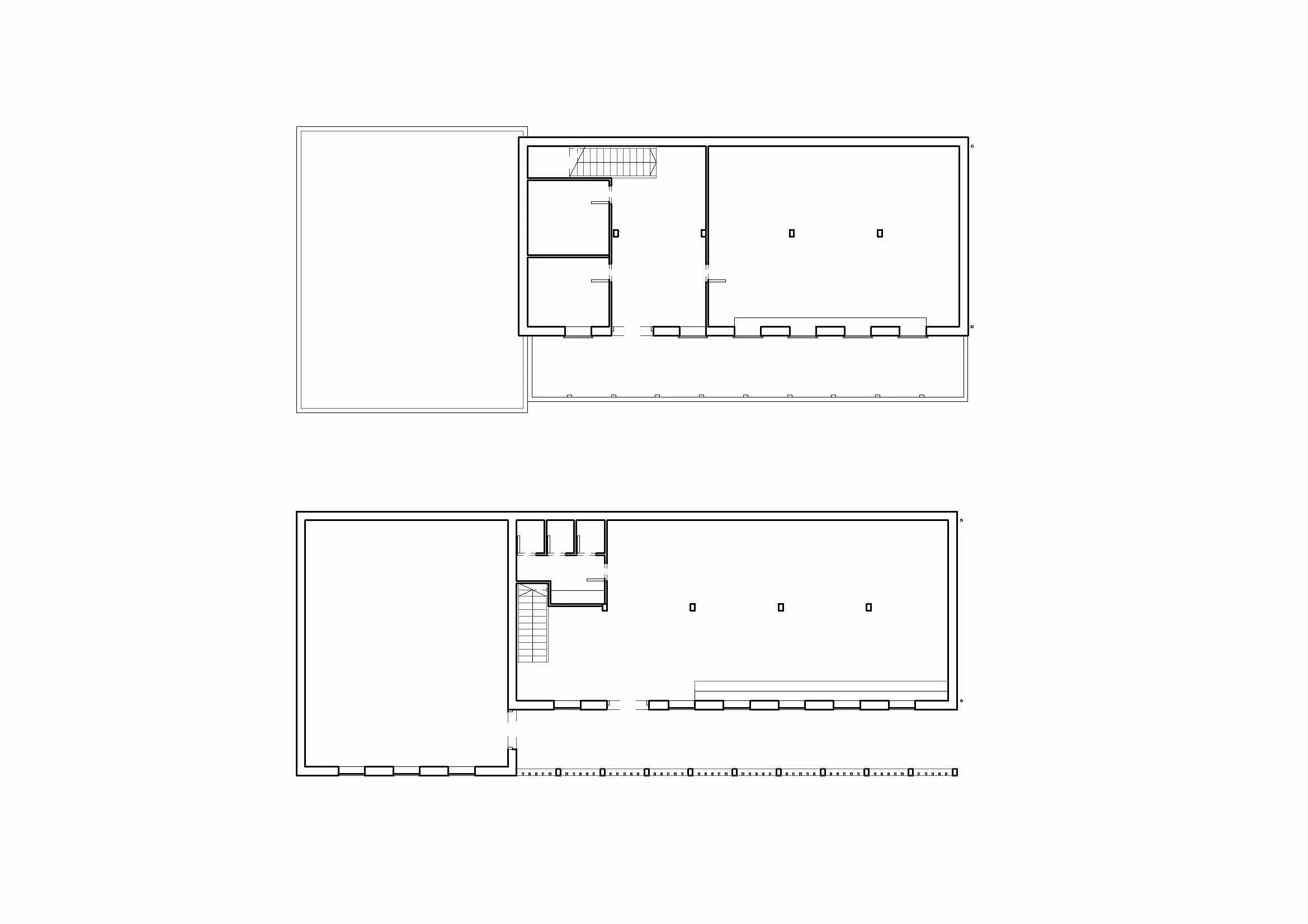
the boidem

This residential project challenges traditional housing by creating an open, adaptable living space supported by a system of lofts (Boidems).

The Boidem system includes various storage compartments, freeing the living area from clutter and fixed furniture, making the space flexible and dynamic.

The furniture design engages both horizontal and vertical axes, with ceiling-height aluminum pieces for climbing and wheels for mobility. Added above an existing building, the new structure also provides a storage floor for original residents, transforming the addition into a kind of Boidem.

The construction features steel trusses connected to concrete cores, with glass-enclosed living floors and channel glass-clad Boidems.

Kiryat Menahem, Jerusalem, Israel

Studio 3, 2nd year, 1st semester
Lecturers: Arch. Alon Sarig Arch. Georgia Hablutzel

The Karlibach complex, formerly an industrial area, has become non-functioning space, primarily used as a parking lot. This project reimagines the site in several ways:

It transforms the complex into a self-contained world with its own unique character, inviting exploration. New residential units are added to revitalize the area, attracting residents who will enhance and care for the space.

Most units are compact, around 50 square meters, each featuring custom additions attached to the façade. Residents select these additions from a catalog, choosing from open or enclosed options that can serve as extra rooms and address practical or unique needs according to their personal stories.

These personalized additions cater to the individual needs of each resident, expressing their unique identity within the home. In doing so, we challenge the standardized, generic approach to residential design that is common today.

Karlibach Complex, Tel-aviv, Israel

inside out

Studio 8, 4th year, 2nd semester
In collaboration with Alon Atar
Lecturers: Arch. Matan Sapir Arch. Lihi Yalin

suggested planning

sites’ programs analysing

Arava, Israel

Arava Center

Building Technology course, 2nd year, 2nd semester
In collaboration with: Or Zeevi, Snir Zerem, Yonatan Harel
Lecturers: Arch. Eyal Ivry Arch. Saar Gharan Levi

Visitors center in the dessert, made from rammed earth precast, planned in consideration of material limitation and the dessert climte with extra attention in details.